Вкратце
Хозяйку этой квартиры вдохновили скандинавские интерьеры, и она захотела реализовать у себя идею светлого пространства с акцентами светлого дерева. За основу взяли открытую планировку, белые стены и мебель и разбавили все декором и комнатными растениями. Добро пожаловать в гости!
Подробности
Заказчица — взрослая женщина — живет в квартире одна. Она тренер по теннису, а в свободное время любит читать. Дизайнера Таисию Чалову она попросила оформить квартиру в скандинавском стиле и предусмотреть много мест для хранения. При этом площадь студии всего 41 квадратный метр.
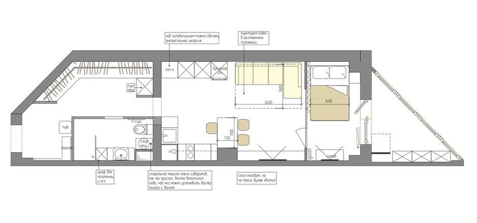
Квартира вытянутой формы, с одним окном и выходом на лоджию. В изначальной планировке есть несущая перегородка, которая делит пространство на хозяйственную и жилую части. В хозяйственной расположились прихожая с системой хранения и санузел. В нем поместился унитаз, раковина, пенал, стиральная машина, бойлер и душевая: ее спроектировали на подиуме и со стеклянной перегородкой.
В студии дизайнер объединила кухню, обеденное место, гостиную и спальню. Для этого использовали прозрачную стеклянную перегородку — чтобы не перекрывать свет из окна.
Ламинат и обои — основные отделочные материалы, благодаря которым удалось сэкономить. Все пространство светлое, на фартук выбрали белый кабанчик с контрастными швами. Эту же плитку использовали в санузле, но разбавили монохром напольной плиткой с узором.
В прихожей за хранение отвечают шкафы, а в жилой зоне, конечно, внимание привлекает вместительный кухонный гарнитур. Дизайнер разместила шкафы вдоль двух стен: раковина, варочная панель и холодильник находятся на расстоянии друг от друга. Подвесные шкафы сделали до потолка, чтобы использовать максимум пространства.
Для экономии отказались от барной стойки: ее заменил простой обеденный стол из ИКЕА. Рядом с ним на стене разместили открытый стеллаж с узкими полками и систему хранения КАЛЛАКС.
Белый цвет стал основным в этом интерьере. Мебель подобрали в ИКЕА и у других демократичных брендов. Дополнением стал цвет натурального дерева, характерный для скандинавского стиля, а в качестве декора добавили зеленые растения и постеры, которые помогла подобрать стилист Елена Новоселова.
Планировка
Бренды, представленные в проекте
Холл
Отделка: обои, Leroy Merlin
Напольное покрытие: плитка, Keramin
Мебель: на заказ, @kuhni_moskva
Декор: постер, AliExpress
Гостиная
Отделка: обои, Leroy Merlin
Напольное покрытие: ламинат, My Step Sky
Мебель: ИКЕА
Декор: постер, AliExpress
Спальня
Отделка: обои, Leroy Merlin
Напольное покрытие: ламинат, My Step Sky
Мебель: ИКЕА
Хотите, чтобы ваш проект был опубликован на INMYROOM? Присылайте фотографии интерьера на wow@inmyroom.ru


